Edificio Núñez

Complejo multiusos

|

Anteproyecto

|

Córdoba {ARG}

|

2021

En el edificio Núñez queremos devolver a la vegetación el espacio que ocupamos con el edificio, creando terrazas que se aprovechan para cualificar los propios espacios interiores _

Hay ocasiones en las que las preexistencias y los gestos redefinen, no sólo la forma exterior, sino también la rentabilidad de un proyecto.

El cliente propone potenciar la posición esquinada del lote para convertir su proyecto de coworking y restauración en un hito de la vía Rafael Núñez de Córdoba, en Argentina. Y con ello, debemos tener en cuenta que la singularidad no se traduzca en un aumento irracional de la inversión.

ORIENTACIÓN Y TERRAZAS

La normativa a nuestro favor

Debemos encontrar un acuerdo entre las escalas de la Núñez, una vía rápida con construcciones sencillas de hasta 3 alturas, y una calle tranquila que desemboca en ésta. Para ello, proponemos un escalonamiento.

Una excepción que nos permite distribuir los metros cuadrados disponibles por normativa en 3 alturas que, orientadas a la calle más tranquila, van a alinearse con la cornisa contigua de la Núñez.

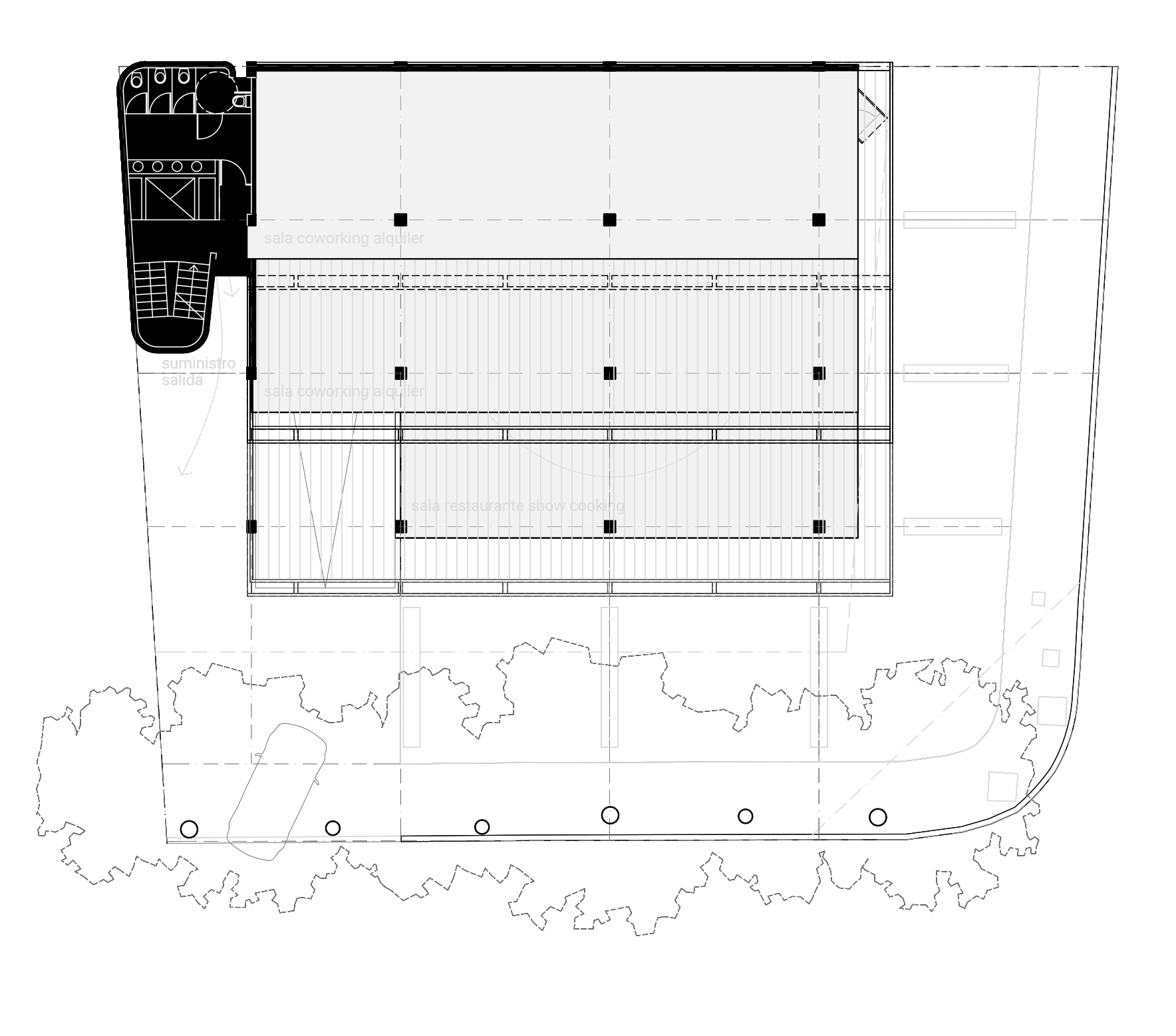
De este modo, lo que obtenemos son grandes naves de trabajo abiertas a distintas terrazas vegetalizadas, que vienen a reponer la porción de suelo en este caso ocupada por la Arquitectura.

ESPACIOS VERSÁTILES

Optimización de estructura e instalaciones

El edificio Núñez pretende ser también una máquina de habitar que ofrece superficies claras, fácilmente divisibles y alquilables.

Todo esto enmarcado en un contexto de optimización de costes resumida en 3 puntos:

– Dejamos las superficies y texturas vistas, ahorrando material, ennobleciendo lo constructivo,

Centralizamos instalaciones y circulaciones verticales en un mismo núcleo lateral diferenciado, liberando la planta útil,

Protegemos natural y climáticamente los espacios de trabajo con grandes aleros y vegetación, reduciendo las exigencias mecánicas.

Model
previous arrow
next arrow

Desliza!

MUCHA MODULACIÓN

Ganar tiempo con prefabricación

Aunque el Edificio Núñez es un proyecto nacido en Latinoamérica, donde las técnicas constructivas son aún manuales respecto a sus contemporáneas en Europa, nuestra intención de controlar cada medida nos permite poner sobre la mesa la posibilidad de, algún día, prefabricar en taller futuros proyectos similares.

Hemos diseñado esta solución con medidas repetitivas entre el 5,50m y el 7,50m, en parte motivadas por la optimización de un parking, necesario para el cliente, y la racionalización estructural.

Porque buscamos una estructura sencilla, racional y casi matricial para ahorrar y facilitar su construcción.

CLAVE: COLABORAR CON GRANDES PROFESIONALES _
BLT ARQUITECTOS

Model
previous arrow
next arrow

Desliza también!

Ref: Housing for Researchers, Bruther

REFERENCIAS BÁSICAS

Referencias pasadas y soluciones contemporáneas

¿Qué pasaría si se encontrasen los mejores arquitectos argentinos, Fernando Higueras, o un ejemplo europeo como Bruther?

– Libertad controlada
– Máquina + Naturalidad
– El material bruto